Расчёт лестницы

Лестница деревянная ЛС-01У



Код товара: 329

Купили более 10 раз

Доставка в Учалы: от 3-х дней

Условия доставки

45 400

Выберите поворот:

+

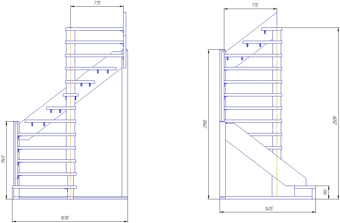
Характеристики:

Высота лестницы 2700 мм

Высота шага 193 мм

Количество ступеней 13

Ширина марша 730 мм

Толщина ступени 40 мм

Мин. проём 1640 х 900 мм

Угол наклона 37 °

Габариты в плане 1650 x 1390 мм

Кол-во подъемов 14

Форма лестницы П-образная

Срок гарантии 3 г.

Комплектация Элементы лестницы

Материал Деревянные

Описание:

Базовый комплект включает в себя деревянные элементы лестницы без какого-либо покрытия. Лестница поставляется в разобранном виде.

Упаковка:

Масса брутто 155

Количество упаковок 3

Размеры наибольшей упаковки (мм) 2000×440×280

Покраска

от 26 730

Любой цвет, подбор по образцу. Надёжные средства. Качественное нанесение

подробнее
Стоимость монтажа

Монтаж:

от 20 010

Качественный монтаж опытными специалистами с учётом всех нюансов

Подробнее

Чертежи и схемы

Покраска деревянных элементов лестницы

от 26 730

Вы можете заказать у нас профессиональную покраску деревянных элементов лестницы.
Ниже представлена палитра наиболее популярных расцветок. Выкрасы выполнены на сосне.
На образцы нанесен 1 слой краски и 2 слоя воска.
Обратите внимание! Оттенок на экране может отличаться от ожидаемого, мы настоятельно рекомендуем посетить наш шоу-рум для ознакомления с образцами выкрасов.
Всю доступную палитру на разных породах дерева можно посмотреть, перейдя по этой ссылке

8510 Белый

8535 Сталь

8532 Орех

8533 Дуб копчёный

8539 Коричневый

8542 Тик тёмный

8543 Мербау

8544 Дуб бразильский

8546 Венге

8548 Дуб натуральный

Шоколад (Лайнос)

8536 Каппучино

8543 Сахара

Любой ваш цвет

Монтаж лестницы

Наша компания осуществляет профессиональный монтаж лестниц любого вида сложности. В нашем портфолио более 300 благополучно установленных интерьерных и наружных лестниц.

Монтаж за 1-2 дня

Бережная точная сборка лестницы

Увезём за собой мусор

Вернём оплату замера при монтаже нашей лестницы

от 20 010

Указана цена исключительно на монтаж лестницы, любые дополнительные работы, связанные с несовершенством стен, углов, устранением дополнительных препятствий при установке лестницы - изменят стоимость работ.
Так же, на стоимость влияет удалённость объекта. Точную стоимость установки лестницы мы можем объявить только после осмотра помещения специалистом и совершения необходимых замеров.

Дополнительно к этой лестнице

Похожие

Ранее вы смотрели